Místo: Praha 7
Autoři: Boris Redčenkov, Prokop Tomášek, Jaroslav Wertig / A69 – architekti
Spolupráce: Jitka Macáková, Tomáš Koňařík, Jan Rosický
Realizace: 2023
Foto: Ester Havlová
Autorská zpráva
Je několik legitimních přístupů k jeho rozvoji. Mají buď charakter evoluční, nebo revoluční. Buď proměna totálně vymaže stopy předchozího využití, nebo je do sebe integruje. Praha má své asanace (Josefov, Žižkov atd.), ale typičtější je pro ni spíše evoluční přístup, kterému vděčí za svoji rozmanitost, barvitost a malebnost. Není efektivnější investovat do zachování genia loci? Nezhodnotí se v něco, na co obvykle v tomto druhu projektů nezbývají prostředky, nevznikne překvapivá nová kvalita, která akceleruje další vazby a podněty?
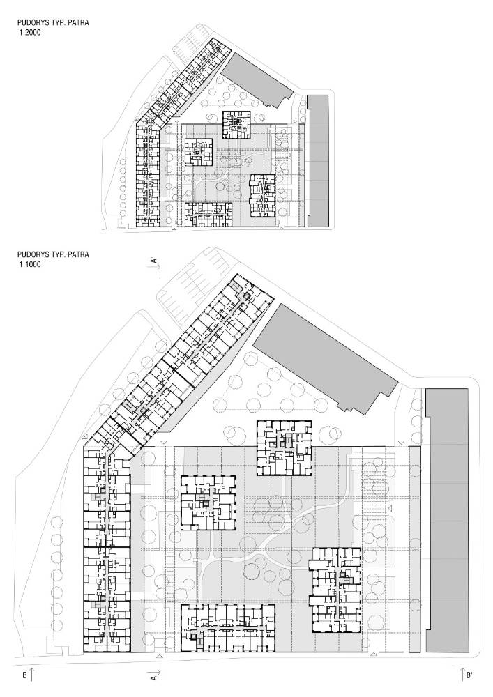
V případě konverze skladového areálu bývalé Ferony jsme se pokusili vytěžit z minulé funkce atmosféru, měřítko, prostorový organizační řád.
Charakter lokality areálu Ferony utvářela téměř sto let ocelová hala. Její půdorysná stopa, skelet a části obvodových zdí jsou základními komponenty návrhu. Fragmenty původní konstrukce jsou doplněny novou strukturou. Původní areál Ferony je ojedinělou ukázkou spojení industriální a bytové funkce, nový návrh se snaží tuto finesu zužitkovat, posunout do kontextu stávajících potřeb bydlení ve městě.
Rytmus původního skeletu vytváří osnovu pro členění vnitřního prostoru. Je založena zahrada s industriálními prvky. Prostory jsou důsledně členěny na veřejné, komunitní a privátní. Vzniká nová piazzetta a obchodní parter. Hmoty domů jsou pojednány drobnějším rytmem, simulují diverzitu. Velikosti fasád jsou odvozeny z kontextu místa. Domy obsahují byty všech kategorií.
Stávající, očištěný skelet ocelové haly používáme jako notovou osnovu, do které jsme vepsali novou melodii. Vystavěním partie nových objektů je dokončen a uzavřen městský blok. Konkrétní polohu a výšky jednotlivých objektů určilo podrobné zkoumání normových, legislativních, majetkových a technických požadavků na výstavbu.
HODNOCENÍ POROTY
Projekt Rezidence U Pergamenky je příkladem výjimečné a citlivé konverze industriálního dědictví, která ukazuje, jak lze skloubit respekt k historii s potřebami současného městského bydlení. Namísto radikální asanace využívá návrh původní konstrukční prvky a prostorovou logiku bývalého areálu Ferony, čímž zachovává jeho charakter a atmosféru – tzv. genius loci. Tato přeměna skladového areálu v obytný blok představuje udržitelný a inovativní přístup k rozvoji města, který efektivně pracuje s existujícími strukturami, podporuje komunitní život a rozvíjí městské prostředí bez zbytečného plýtvání zdroji. Stavba navazuje na tradici pražské urbanistické evoluce a zároveň město obohacuje o novou kvalitu a inspirativní příklad proměny brownfieldu, což představuje cestu, kterou Ministerstvo průmyslu a obchodu svými aktivitami trvale podporuje.





